







Im Rahmen eines Entwurfskonzepts wurde die energetische, funktionale und architektonische Sanierung der Mehrzweckhalle Ühlingen-Birkendorf aus den 1970er-Jahren untersucht. Ziel des Konzepts war es, das Gebäude langfristig als Sport-, Schul- und Veranstaltungsort zu sichern und durch gezielte Maßnahmen zukunftsfähig weiterzuentwickeln.
Der Entwurf basiert auf dem Erhalt der bestehenden Stahlbetonstruktur und deren architektonischer Überformung durch eine neue, energetisch wirksame Gebäudehülle in Holzbauweise. Ein neues Satteldach fasst die heterogenen Gebäudeteile zu einem klaren Gesamtvolumen zusammen und schafft Raum für die Neuorganisation der Gebäudetechnik. Ergänzt wird das Konzept durch barrierefreie Erschließungen, sowie eine nachhaltige Energieversorgung. So entsteht eine zukunftsfähige Mehrzweckhalle, die funktional, gestalterisch und städtebaulich aufgewehrtet wird.
Standort
79777 Ühlingen-Birkendorf
Nutzung
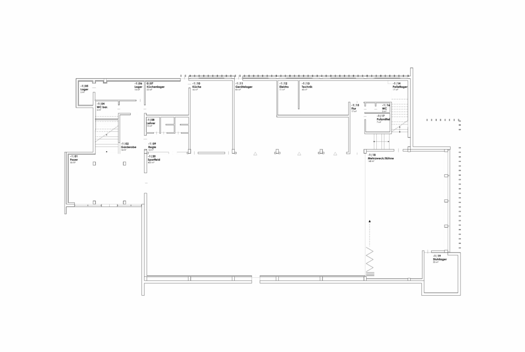
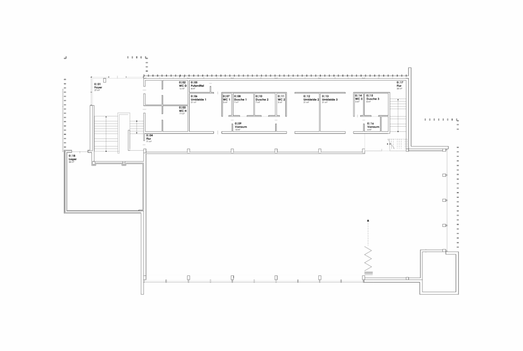
Mehrzweckhalle
Maßnahme
Energetische/Grundsanierung
Projektgröße
1.650 m²